
Planning Approved - Padel Tennis Centre at Mansfield Town Football Club
Mansfield, Nottinghamshire, NG18
GraceMachin Planning & Property regularly undertake the strategic promotion of land in the East Midlands which culminates in formal planning permission.
In 2016 a local estate agent recommended to a client that GraceMachin be appointed to promote a potential housing allocation within a strong local housing market area. Woodborough is a well-known and attractive village location with easy access to the Greater Nottingham urban area.
As a site in the Green Belt, it was necessary to co-ordinate and submit representations on the Gedling Local Plan Part 2 seeking its removal from the Green Belt and allocation as a housing site to meet the future housing needs of the Borough. Following appearances at Local Plan Hearing Sessions and the site being identified for allocation at the Regulation 19 plan making stage, upon adoption of the Local Plan we were able to advise the client on seeking a formal planning permission on the site.
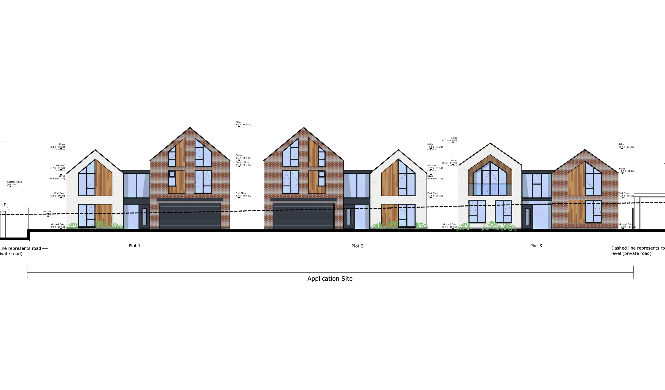
In 2020 two application were made on the site. One application was made in full and the adjacent application was made in outline. In July 2020, the first application for three detached dwellings was approved at Gedling Borough Planning Committee subject to the signing of a s106 agreement.
With the principle of the development supported by its allocation in an up-to-date Local Plan the risk of the planning application being rejected was reduced.
This planning process reflects the need to understand the short, medium, and long-term development of land. It also reflects the benefit of having local planning knowledge and understanding when a site should be promoted in the Local Plan process prior the submission of a formal planning application.
GraceMachin Planning & Property regularly identify a sites development potential, promoting sites to an allocation and then securing a formal planning permission for their clients both within and outside of the Nottingham-Derby Green Belt.
Established in June 2012 by Chartered Town Planners Nick Grace and George Machin, our portfolio of work covers a wide breadth and scale of development; from single houses or replacement dwellings to large scale, mixed use, residential and commercial sites.
Mansfield, Nottinghamshire, NG18
Bulcote, Nottinghamshire, NG14
Brinsley, Nottinghamshire, NG16